Vợ chồng tôi đang sống trong một căn hộ chung cư diện tích 85.2m². Chồng tôi sinh năm 1979, còn tôi sinh năm 1983 thì để hướng bếp và hướng phòng ngủ chính như trong thiết kế như vậy đã hợp phong thủy chưa? Nếu chưa phù hợp thì mong các KTS tư vấn cải tạo cũng như bài trí giúp vợ chồng tôi để có một căn hộ đẹp mắt và hợp phong thủy. Tôi cảm ơn rất nhiều! (Hồng Loan)
Trả lời:
Dựa theo những thông tin mà bạn cung cấp và yêu cầu của bạn, chúng tôi xin đưa ra thiết kế sơ bộ để bạn tham khảo.
![]() |
|
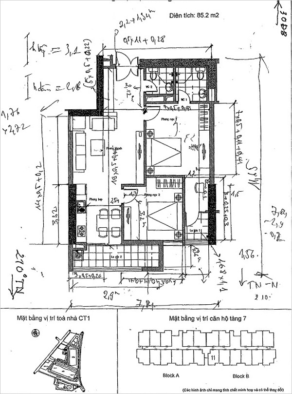
Mặt bằng hiện trạng. |
![]() |
| Mặt bằng tư vấn bố trí nội thất. |
85,2m² là diện tích khá phổ biến của căn hộ cho hộ gia đình hiện nay. Cơ cấu bố trí hiện tại của nhà bạn đã tương đối hợp lý. Tuy nhiên để tận dụng được được tối đa diện tích, không gian cũng như bài trí căn hộ hợp phong thủy, chúng tôi đưa ra những đề xuất sau.
Chồng bạn tuổi 1979, hướng tốt thuộc Đông, Nam, Đông Nam. Như vậy hướng bếp trên hiện trạng không phù hợp với hướng tuổi của chồng bạn mà phải đảo ngược lại. Bếp kê sát tường phòng ngủ 2 và được bố trí dạng âm tường sạch sẽ, hiện đại. Không gian ăn đặt ở ngay lối ra loggia thoáng mát và tràn ngập ánh sáng.
Cửa phòng ngủ 2 được xoay sang hướng bên cạnh nhằm tránh nhìn thẳng vào bếp. Với diện tích 11,5m², phòng ngủ 2 bố trí được giường 1,6x2m, tủ quần áo âm tường, bàn học nhỏ cho con và giá sách treo tường. Không gian phòng ngủ chính có diện tích 18m², tương đối rộng và có thể đáp ứng đầy đủ các công năng cần thiết.
Ở phòng khách là bộ sofa chữ L giúp cân đối lại khoảng tường không mấy vuông vức của căn hộ. Kệ đồ ở phòng khách chỉ là một kệ thấp, nhỏ để không làm chiếm diện tích cho không gian. Ngoài ra chúng tôi đề xuất đặt tivi dưới dạng âm tường để giữ cho khu vực này được thoáng đãng.
Căn hộ sử dụng màu sắc tươi sáng, kết hợp trắng và ghi hiện đại, nhấn vào đồ nội thất hoặc tranh tường một số màu tương phản như vàng, xanh lá tạo sự phá cách trẻ trung. Sau đây là một số hình ảnh tham khảo giúp bạn có hình dung tốt nhất cho căn nhà của mình.
![]() |
|
Phòng khách hiện đại với trắng và ghi sáng. |
![]() |
|
Tivi âm tường giúp tiết kiệm diện tích. |
![]() |
|
Không gian bếp và ăn gọn gàng với thiết kế trẻ trung hiện đại. |
![]() |
|
Phòng ngủ chính rộng rãi, sang trọng. |
![]() |
|
Phòng ngủ con với tông màu xanh lá nghịch ngợm. |
![]() |
| Nhà tắm nhỏ gọn với bài trí sang trọng. |







