Cách tìm Tâm nhà và Hướng nhà hiện nay có nhiều sách Phong thủy (sách vở, e.book, trên internet) hướng dẫn các phương pháp tìm tâm nhà và hướng nhà, nhưng do mọi người mới tìm hiểu, hay mới tiếp xúc lần đầu (đặc biệt là các gia chủ muốn nhờ tư vấn) và các bạn học Phong thủy chưa có kinh nghiệm, nên dễ bị sai lầm khi muốn xác định Tâm nhà. Nhân đây, chúng tôi sẽ đưa ra một số bước đơn giản có thể giúp tìm Tâm nhà và Hướng nhà một cách rõ ràng, nhằm giúp các bạn có thể vẽ và thể hiện hoạ đồ nhà một cách nhanh chóng.
1. Tìm Tâm nhà:
Xác định Tâm nhà là việc vô cùng quan trọng trong việc lập cực và phân chia cửu cung khí trường trong phong thủy, việc xác định được tâm nhà chuẩn xác thì việc tính toán mới chính xác.
Có rất nhiều phương pháp xác định Tâm nhà. Tuy nhiên các phương pháp đưa ra còn nhiều mâu thuẫn, nhất là đối với những ngôi nhà có khuyết góc hay nhà hình chữ L, vì hiện nay đa phần cấu trúc, hình dạng, bố cục nhà, căn hộ chung cư phức tạp và đa dạng hơn thời xa xưa rất nhiều, khiến việc tìm tâm nhà từ đơn giản đôi lúc càng trở nên khó khăn. Đối với những nhà được xây theo hình vuông hay hình chữ nhật thì tâm nhà là giao điểm của 2 đường chéo.
|
|
| Tâm nhà hình vuông và hình chữ nhật |
Đối với những nhà có hình tam giác, lục giác, hình thang... thì cách tính tâm nhà cũng là cách tính tâm những hình này trong các lớp toán tiểu học.
![]() |
| Tâm nhà hình đa giác |
Còn đối với những nhà có nhiều góc cạnh không đồng đều thì việc định tâm nhà tương đối khó khăn hơn. Phương pháp đơn giản nhất để tìm tâm của những căn nhà này là vẽ sơ đồ nhà (hình dạng căn nhà) lên tấm bìa cứng. Rồi lấy một vật nhọn (như đầu viết chì, viết big, que xiêm..) đặt ở bất kỳ điểm nào trên tấm bìa để nâng tấm bìa cứng có hình sơ đồ căn nhà lên, cho đến khi nào tấm bìa này thăng bằng, đó chính là tâm nhà. (Các bạn lưu ý cắt hết những phần thừa của tấm bìa cứng đi, chỉ để lại phần sơ đồ căn nhà mà thôi khi thực hiện nhé).
Dùng bút đánh dấu điểm vừa tìm được (điểm thăng bằng đó), xong bạn vẽ 2 đường thẳng đi ngang qua điểm đó: 1 đường thẳng góc với 2 bên hông nhà; 1 đường thẳng góc với 2 mặt trước, sau của căn nhà. Đường thẳng thứ 2 này sẽ là tọa và hướng của căn nhà. Từ đường thẳng này bạn có thể phân ra 8 hướng và 24 sơn chung quanh nhà để xác định chính xác vị trí của mọi thứ trong nhà trước khi luận đoán cát, hung, hay tìm cách sửa đổi Phong thủy cho căn nhà đó.
Các bạn cần biết thêm những nhà không phải là hình vuông hay hình chữ nhật, nguyên tắc chung cho xác định tâm nhà cho loại hình ngôi nhà này là đưa hình dạng ngôi nhà trở về thành hình vuông hay hình chữ nhật rồi từ đó lấy giao điểm của 2 đường chéo là Tâm nhà. Vì chúng tôi biết là các bạn rất lúng túng với loại hình ngôi nhà bị khuyết góc, lồi, lõm. "Cẩn tắc vô ưu", nên cứ từ tốn, kiên nhẫn thực hiện cho chuẩn, thực tập nhiều sẽ thành dễ. Chúng ta sẽ có 2 trường hợp: 1. Khuyết góc hoặc lồi ra nhỏ hơn 1/3 cạnh đang xem xét; 2. 1. Khuyết góc hoặc lồi ra lớn hơn 1/3 cạnh đang xem xét.
Theo phong thủy ứng dụng, loại hình ngôi nhà khuyết góc hoặc lồi ra 1 góc, mà góc khuyết hoặc góc lồi đó nhỏ hơn 1/3 phần xem xét:
Trường hợp ngôi nhà bị khuyết góc, mà góc khuyết nhỏ hơn 1/3 phần so sánh thì ta xác định tâm nhà bằng cách bù luôn phần khuyết đó thành hình vuông để xác định tâm nhà.
Trường hợp nhà lồi 1 góc, mà góc đó nhỏ hơn 1/3 vùng so sánh thì ta bỏ góc lồi đó để xác định tâm nhà.
![]() |
| Phần lồi và góc khuyết rất nhỏ không đáng kể, không tính vào |
Tóm lại: các bạn nhớ nguyên tắc chung là lồi nhỏ thì không tính vào, khuyết nhò thì bù vào cho đủ.
2. Thể hiện sơ đồ nhà (họa đồ - mặt bằng căn nhà):
Trong phong thủy xem hướng nhà, các bạn cần phải đo chính xác chiều dài, chiều rộng của căn nhà là bao nhiêu mét (hay feet), thể hiện chúng lên giấy trắng thống nhất đơn vị đo lường, nếu quen dùng mm là mm hết, mét là mét hết, feet là feet hết, inch là inch hết cho cả chiều dài, chiều rộng và các bộ phận khác. Các bạn nên vẽ trước chiều rộng (ngang) và chiều dài (sâu) của căn nhà lên giấy trước, tỷ lệ kích thước trên sơ đồ phải chính xác để khi phân 8 cung trong nhà không sai lệch (bước sau)
Kế đến, ta vẽ lần lượt cách bố trí của căn nhà, như cửa chính, cửa sau, cửa sổ, phòng khách, phòng ăn, bếp, phòng ngủ, phòng vệ sinh, cầu thang, v.v., theo từng khu vực trong khuôn viên của 4 bức tường. Dĩ nhiên là phải đo kích thước và tính tỷ lệ trước khi vẽ, ví dụ nếu ta muốn vẽ vị trí bếp thì phải đo xem nó cách bức tường phía trước (hay phía sau) khoảng bao nhiêu. Và cách bức tường bên phải (hoặc bên trái) khoảng bao nhiêu. Rồi nó lớn khoảng bao nhiêu. Và nhìn về bức tường nào?..Nhớ là vẽ thêm tất cả các tầng lầu (nếu có).
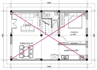
Sau đó, ta đưa tâm nhà như đã nói ở trên để xác định tâm nhà trên sơ đồ vừa vẽ xong. Như vậy là ta có được một sơ đồ nhà hoàn chỉnh.

Một bản vẽ nhà hoàn chỉnh để xác định tâm nhà
3. Cách sử dụng La bàn – La Kinh chính xác:
Việc chọn hướng nhà tốt nhất theo phong thủy đóng vai trò quyết định trong lựa chọn các biện pháp Phong thủy phù hợp cho một ngôi nhà. Quan sát vị trí mặt trời mọc hoặc lặn để xác định hướng là không đủ chính xác. Các nhà phong thủy thường xác định phương hướng bằng một dụng cụ đặc biệt là La bàn phong thủy (la kinh). Dụng cụ này hết sức phức tạp, chỉ các chuyên gia mới có thể sử dụng. Tuy nhiên, đối với các bạn không nhà phong thủy thì chỉ cần dùng những chiếc là bàn đơn giản là được nhưng có độ số, càng lớn càng chính xác.


La bàn định hướng phương Tây (kim chỉ Bắc) và La Kinh (Kim chỉ Nam)
Bạn hãy thực hiện theo các bước sau:
Để tránh tác động của từ trường lên chiều quay của kim la bàn, khi đo hướng nhà, đừng đứng gần các thiết bị điện, ô tô. Hạn chế khi đo hướng nhà dùng kim loại trên người (điện thoại di động, dây chuyền, đồng hồ, nhẫn, thắt lưng có kim loại…).
Đứng bên ngoài nhà, mặt quay nhìn vào ngôi nhà, đứng ở trung điểm (điểm giữa) chiều ngang ngôi nhà, đứng cách ngôi nhà chừng 1m -1,5m.
Hai tay cầm La bàn cân bằng không nghiêng lệch, ngang tầm hông, xoay la bàn cho tới khi mũi kim tô màu (màu xanh trong hình minh hoạ) trùng khít với hướng chính bắc (chữ N trên la bàn hình 1), mũi kim phải trùng với (O" độ - N- Bắc).
Xoay mặt kính trên La Bàn (có vạch màu vàng) - Đường màu vàng này phải vuông góc với Cạnh Ngang của Ngôi Nhà. Đọc con số ghi trên vòng ngoài của La bàn, nằm trên cùng đường thẳng với mũi tên (màu vàng) trên mặt kính.
Cần thử đi thử lại khi xem độ số (dịch sang trái sang phải một chút nhưng vẫn giữ nguyên khoảng cách tới ngôi nhà). Để xem có sự khác biệt giữa các số đo của mỗi lần không. Nếu có sai số lớn hơn 3 độ trong 3 lần đo, bạn đang chịu ảnh hưởng của các thiết bị điện hoặc kim loại, ví dụ đang đứng gần hệ thống đường ống nào đó. Hãy thay đổi vị trí và đo lại. Đối với chúng tôi sai lệch 3-5 độ là sai biệt rất lớn. Độ số mà bạn vừa đo được là Toạ của nhà, ngược lại (đối xung) với con số trên là Hướng.
Xác định được số đo độ Tọa (hướng) nhà. Hãy tra số đo bạn đọc được trên la bàn với bảng sau để biết hướng nhà:

La bàn - 24 Son Hướng - 8 Cung (Ly - Khôn - Đoài - Càn -Khảm - Cấn - Chấn - Tốn)
Bạn cũng có thể học cách chuyển từ số đo hướng từ độ số ra 24 sơn hướng, Ví dụ bạn đo được 180 độ - đối xứng với nó là 0 độ (Toạ Nam hướng Bắc; Tọa Ngọ hướng Tý). Bạn có thể In La bàn 24 Son này ra để phân 8 Cung cho căn nhà chính xác độ số.

Sơ đồ mặt bằng phân 8 cung điển hình
Những chuẩn tắc phong thủy xác định hướng nhà:
Lấy Minh đường (khoảng không gian trống trước nhà) làm hướng nhà: nhà nhìn ra Minh đường: như công viên, bãi đổ xe,…
Lấy sông hồ làm hướng nhà: nếu nhà nhìn ra sông hồ
Lấy phố chính làm hướng nhà: nhà trông ra phố chính
Lấy cửa chính của nhà làm hướng nhà: Khi nhà có nhiều cửa thì lấy phương trông của cửa chính làm Hướng nhà.
Lấy núi (tòa nhà cao) sau lưng nhà làm toạ, ngược lại là hướng nhà.
Lấy hướng có nhiều ánh sáng làm hướng nhà.
Các bạn hãy nhớ đại ý là: Nơi động (Dương) sẽ làm hướng nhà. Nếu không sẽ rất lúng túng.
Chúng tôi hy vọng, việc trình bày theo từng bước trên có thể giúp các bạn và Gia chủ thuận lợi hơn. Chúc bạn thành công.


