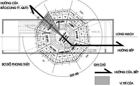
Tôi đo giữa đất là 322 độ Tây Bắc. Đất dự án được xây một tầng trệt, 2 tầng lầu và tum.
Trả lời:
Chủ nhà 1954, năm Âm lịch là Giáp Ngọ, mệnh Sa Trung Thổ, quái mệnh Khảm. Thuộc Đông tứ mệnh, nhà quay về Tây Bắc thuộc Tây tứ trạch, trạch mệnh chưa tương phối.

Việc mặt tiền rộng 6m là một lợi thế, từ hướng Tây Bắc có thể đưa hướng cửa nhìn về hướng Bắc (0 độ cộng trừ 22,5độ). Khi đó cửa chính của ngôi nhà được điều chỉnh về hướng Bắc, lúc này trạch và mệnh đã được tương phối.
Chủ nhà mạng khảm mở cửa chính hướng khảm (chính Bắc) phục vị. Cửa chính tại Khảm (chính Bắc), chủ nhà hay sơn chủ cũng tại Khảm.
Nguyên văn: Theo bát quái đồ sở thuộc cung Phục Vị là quẻ Khảm vi Thủy trong kinh Chu Dịch. Gia đình có nhiều của, nhiều con cháu.
Lời tượng ứng về ngôi nhà: Thủy nhược trùng phùng - thê tử nạn. Ý nghĩa: Nước bằng gặp nhau thì vợ con lâm nạn. Đó là nói Khảm thủy lại gặp Khảm thủy, tức là cửa tại Khảm (chính Bắc) mà chủ cũng tại Khảm.
Cửa chính được điều chỉnh phù hợp với kiến trúc và biến nhà đang nghịch hướng thành trạch mệnh tương phối cho chủ nhà 1954.

Từ cửa Khảm (chính Bắc) biến 8 lần được Phục vị cho nên gọi là Phục vị trạch. Khảm thủy gặp nhau là tỷ hòa và được Phục vị mộc đắc vị cho nên lúc đầu phát đạt lớn, nhưng vì 2 Khảm thuần dương chẳng sinh hóa được, về lâu sau ắt khắc hại vợ con, sinh ra các vụ ở góa, không con nối dòng. Hai Khảm thuộc dương tức như hai nam nhân ở chung mà không có thê thiếp.

Hướng Bắc với chủ Khảm tốt một nửa, còn lại gia chủ nên dùng thêm bếp để tương hỗ.
Chủ Khảm, Trạch cũng khảm (nhà đang thuần dương) vậy việc chọn bếp cần một cái bếp âm để cân bằng và hóa giải phần bất lợi đang còn tồn đọng.
Bếp đặt tại Tốn (Đông Nam): Bếp Tốn (Đông Nam) âm mộc đối với 2 Khảm tương sinh mà có đủ âm dương, sinh biến được 2 sinh khí mộc hữu khí rất hợp với Đông tứ trạch là ngôi nhà này. Vậy nên Phước, Lộc, Thọ là 3 tốt hoàn toàn thật là đại Cát, đại lợi được mạng danh là Ngũ tứ đăng khoa táo (bếp 5 con thi đậu).
KTS Vũ Quang Định
Công ty CP Kiến trúc ASPACE